Splendide appartement neuf de 4,5 pièces au 3ème étage en duplex au bord du lac

location 4.5 pièces
location 3'900 chf
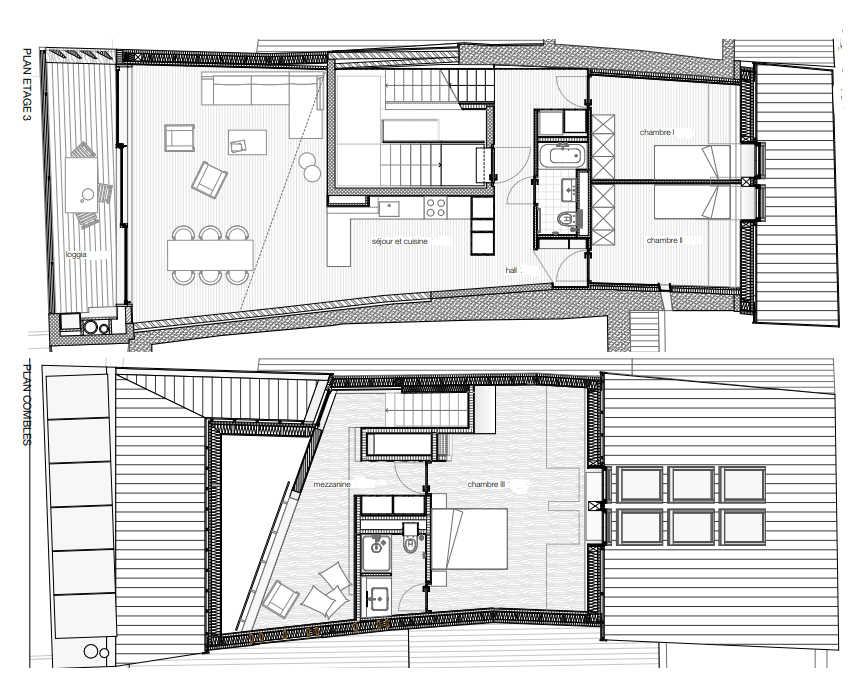
Exceptionnel appartement de 4.5 pièces au 3ème étage en duplex au bord du lac à Nyon comprenant :

- Un hall d'entrée avec armoires murales
- Une cuisine semi-ouverte sur le séjour
- Deux chambres avec armoires murales
- Une salle de bains
- Un WC séparé
- Un grand balcon

A l'étage:
- Une chambre parentale avec salle de douche à l'italienne/WC
- Une mezzanine 
- Un espace de rangement

Loyer : CHF 3'900.00 + CHF 200.00 d'acompte de charges.
Disponibilité : dès le 1er avril 2026

En cas d'intérêt, n'hésitez pas à prendre contact avec notre agence au 022 360 90 90.

Caractéristiques

Num Référence Rive 63 - lot 4 - G5
Type de bien Appartement
Localité Nyon
Adresse
Loyer (sans les charges) 3'900 chf
Nbre de pièce(s) 4.5
Nbre de salle(s) de bains 2
Nbre de chambre(s) 3
Vue Belle vue


+41 22 360 90 90 Nous écrire Demande de location

Caractéristiques

A proximité

Accès plage

picto Route principale